前橋市と高崎市の不動産売買|クリア不動産 > (戸建(売買))地域から探す > 伊勢崎市 > 伊勢崎市今泉町1期
■伊勢崎南小学校、伊勢崎第一中学校
■都市ガス・本下水
■駐車並列2台可能
■伊勢崎市役所まで1km圏内
■コンビニ・スーパー徒歩10分圏内











(※元利均等方式 金利5.00%まで ※返済年数5~50年まで入力できます)
(※ボーナスは年2回で計算しています。1000万円まで入力できます)
(※物件購入時、その他諸費用が発生する場合がございます)
| 所在地 | 群馬県伊勢崎市今泉町2丁目 | ||
|---|---|---|---|
| 交通 | |||
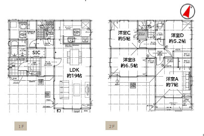
| 間取り/詳細 | 4LDK/ | 建物面積(坪数) | 105.16㎡(31.81坪) |
| 価格 | 2,990万円 | ||
| 駐車場/月額料金 | 有/0円 | ||
| 土地の敷金/保証金 | -/- | 借地料/借地期間 | -/- |
| 土地権利 | 所有権 | 土地面積(坪数) | 194.56㎡(58.85坪) |
| 傾斜地部分面積 | - | 路地状敷地 | - |
| 私道負担面積/セットバック | -/無 | 高圧線下面積 | - |
| 地目/地勢 | 宅地/平坦 | 接道状況 | 角地(北 公道)(西) |
| 建ぺい率/容積率 | -/- | 用途地域 | 第一種中高層住居専用 |
| 都市計画 | 市街化区域 | 種別/構造 | 新築一戸建/木造 |
| 階建 | 2階建 | 築年月(築年数) | 2025年 12月 (予定) |
| 総区画数/販売区画数 | -/- | 向き | - |
| 現況 | 未完成 | その他の法令上の制限 | - |
| 取引態様/引渡時期 | 仲介/相談 | 建築確認番号 | 第HPA-25-10603-1号 |
| 物件番号 | 99123096 | 取引条件の有効期限 | 2025年12月28日 |
| 設備条件 |
|
||
| 備考 |
■住宅ローンについて 当社は、住宅ローンの知識と経験が豊富な不動産会社です。勤続が短い、契約社員、派遣社員、借入がある方などの住宅ローンのサポート経験が豊富です。 ■空家相談や不動産相続相談について 当社は空家問題や相続問題の相談実績が豊富ですので、お気軽にご相談ください。 |
||
| 取扱会社 |
|
||
| QRコード |
このQRコードを読み取ることで、スマホでも物件情報を確認できます。 |
||
※地図上に表示される物件の位置は付近住所に所在することを表すものであり、実際の物件所在地とは異なる場合がございます。
伊勢崎市今泉町1期に関するこだわり条件から探す
伊勢崎市以外の市区町村から探す