前橋市と高崎市の不動産売買|クリア不動産 > (戸建(売買))地域から探す > 太田市 > 太田市藪塚町売戸建住宅











(※元利均等方式 金利5.00%まで ※返済年数5~50年まで入力できます)
(※ボーナスは年2回で計算しています。1000万円まで入力できます)
(※物件購入時、その他諸費用が発生する場合がございます)
| 所在地 | 群馬県太田市藪塚町 | ||
|---|---|---|---|
| 交通 | |||
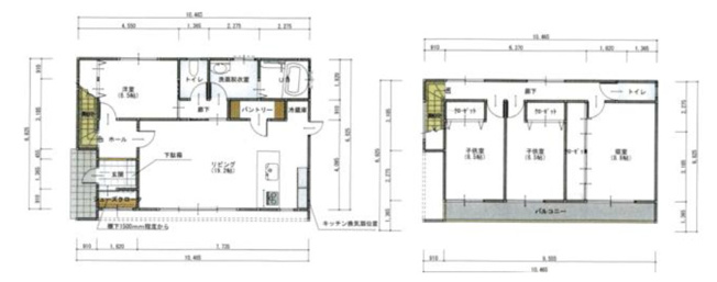
| 間取り/詳細 | 4LDK/ | 建物面積(坪数) | 123.99㎡(37.5坪) |
| 価格 | 2,250万円 | ||
| 駐車場/月額料金 | 有/0円 | ||
| 土地の敷金/保証金 | -/- | 借地料/借地期間 | -/- |
| 土地権利 | 所有権 | 土地面積(坪数) | 247.94㎡(75.00坪) |
| 傾斜地部分面積 | - | 路地状敷地 | - |
| 私道負担面積/セットバック | -/無 | 高圧線下面積 | - |
| 地目/地勢 | 宅地/- | 接道状況 | 一方(西 公道) |
| 建ぺい率/容積率 | -/- | 用途地域 | 無指定 |
| 都市計画 | 非線引区域 | 種別/構造 | 中古一戸建/木造 |
| 階建 | 2階建 | 築年月(築年数) | 2017年 11月 (築8年) |
| 総区画数/販売区画数 | -/- | 向き | - |
| 現況 | 賃貸中 | その他の法令上の制限 | - |
| 取引態様/引渡時期 | 仲介/相談 | 建築確認番号 | - |
| 物件番号 | 96612554 | 取引条件の有効期限 | 2025年11月30日 |
| 設備条件 |
|
||
| 備考 | クリア不動産は住宅ローンに強い不動産店です。マイホームが欲しいけど住宅ローンが心配な方は諦めずにクリア不動産へお問合せ下さい。 | ||
| 取扱会社 |
|
||
| QRコード |
このQRコードを読み取ることで、スマホでも物件情報を確認できます。 |
||
※地図上に表示される物件の位置は付近住所に所在することを表すものであり、実際の物件所在地とは異なる場合がございます。
太田市以外の市区町村から探す
太田市の町名から探す